
solgt



solgt
Hejrebanken 47, 4681 Herfølge
Velindrettet rækkehus med vestvendt gårdhave i skønne omgivelser
- God planløsning
- Nemme udemiljøer
- Vestvendt gårdhave
- Børnevenligt kvarter
Over to veldisponerede plan, fordeler pladsen sig yderst godt i dette skønne, stemningsfulde
rækkehus. Her bliver I en del af et hyggeligt kvarter, med et godt naboskab i fantastiske
omgivelser, hvis I da ellers sætter pris på masser af plads til udfoldelse og smuk natur over åbne
vidder, skove, åer og søer.
I Herfølge finder I alt hvad familien skal bruge i en aktiv hverdag og her mødes enderne altså
nemt for alle medlemmer af familien. Her er ikke bare skole, daginstitution og gode
indkøbsmuligheder, men også et aktivt foreningsliv, med tilbud for alle aldre, der blandt andet
udfolder sig i byens svømmehal, i Herfølgehallen, i biblioteket og omkring stadion. Desuden tæt
på offentlig transport - fra april lyntog - fra Herfølge Station til København på 35 minutter.
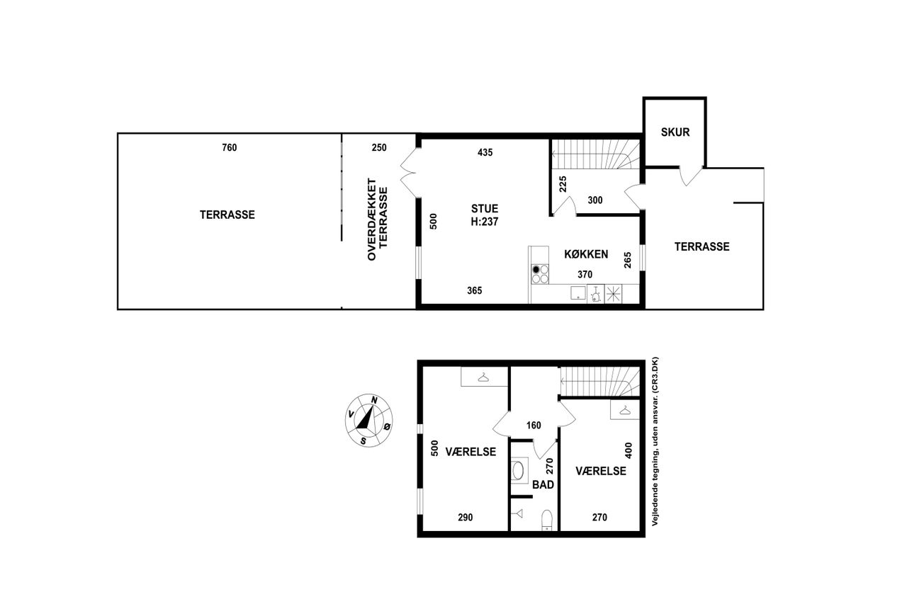
På Hejrebanken 47 får I to gedigne værelser og husets badeværelse på førstesalen, og I
stueetagen fordeler pladsen sig over en god entré med plads til sko og overtøj samt en lys og
indbydende stue, der ligger i åben forbindelse med husets køkken og har udgang til den skønne,
solrige gårdhave.
Faciliteterne i huset fremstår yderst velholdte. Her kan I sagtens flytte direkte ind og løbende
modernisere, opdatere og sætte eget præg på udtrykket i jeres nye hjem.
Pladsen indenfor suppleres af skønne uderum både foran og bag huset. I den vestvendte
baghave er der etableret en hyggelig, overdækket terrasse, der forlænger udesæsonen, og
resten af baghaven er praktisk anlagt med fliser og omkranset af flot og velholdt hegn. Foran
huset kan morgensolen nydes i den hyggelige, lille gårdhave, hvor der desuden er opført et
praktisk redskabsskur.
- God planløsning
- Nemme udemiljøer
- Vestvendt gårdhave
- Børnevenligt kvarter
Over to veldisponerede plan, fordeler pladsen sig yderst godt i dette skønne, stemningsfulde
rækkehus. Her bliver I en del af et hyggeligt kvarter, med et godt naboskab i fantastiske
omgivelser, hvis I da ellers sætter pris på masser af plads til udfoldelse og smuk natur over åbne
vidder, skove, åer og søer.
I Herfølge finder I alt hvad familien skal bruge i en aktiv hverdag og her mødes enderne altså
nemt for alle medlemmer af familien. Her er ikke bare skole, daginstitution og gode
indkøbsmuligheder, men også et aktivt foreningsliv, med tilbud for alle aldre, der blandt andet
udfolder sig i byens svømmehal, i Herfølgehallen, i biblioteket og omkring stadion. Desuden tæt
på offentlig transport - fra april lyntog - fra Herfølge Station til København på 35 minutter.
På Hejrebanken 47 får I to gedigne værelser og husets badeværelse på førstesalen, og I
stueetagen fordeler pladsen sig over en god entré med plads til sko og overtøj samt en lys og
indbydende stue, der ligger i åben forbindelse med husets køkken og har udgang til den skønne,
solrige gårdhave.
Faciliteterne i huset fremstår yderst velholdte. Her kan I sagtens flytte direkte ind og løbende
modernisere, opdatere og sætte eget præg på udtrykket i jeres nye hjem.
Pladsen indenfor suppleres af skønne uderum både foran og bag huset. I den vestvendte
baghave er der etableret en hyggelig, overdækket terrasse, der forlænger udesæsonen, og
resten af baghaven er praktisk anlagt med fliser og omkranset af flot og velholdt hegn. Foran
huset kan morgensolen nydes i den hyggelige, lille gårdhave, hvor der desuden er opført et
praktisk redskabsskur.
Matthias Wolff
Ejendomsmægler MDE
Fandt du ikke hvad du søgte
Så opret dig her på siden med dine ønsker til en ny bolig.
Så optager vi dig i vores køberkartotek, så du er blandt de første der modtager materiale på nye boliger til salg, der matcher
dine ønsker. Du får en gratis online søge annoncering efter din drømme bolig og hører fra os når der er en ny bolig til dig.