
solgt






solgt
Åvænget 7, Dalby, 4690 Haslev
Lys og velindrettet 1-plansvilla
- Super veldisponerede kvadratmeter
- Charmerende udemiljøer
- Lyse rum
- Perfekt familievilla
- Meget bolig for pengene
I Dalby har I det hele. Her er der skole, indkøbsmuligheder, daginstitutioner, fritidsaktiviteter, et
aktivt lokalsamfund, godt naboskab og masser af aktiviteter gennem hele året. Dalby er omgivet
af smuk natur ved søer, i skove og over de vidtstrakte, åbne vidder og får altså rige muligheder
for at nyde oplevelser i det fri.
Her udbydes nu en super velindrettet villa, hvor pladsen er særligt godt udnyttet og hvor der på
en og samme tid er indflytningsklar og muligheder for at sætte eget præg på udtrykket på jeres
nye hjem.
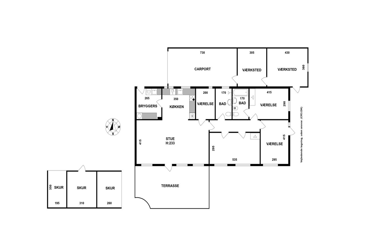
Pladsen fordeler sig over hele fire værelser, hvoraf det ene nemt kan deles op i to, hvis i har
behov for dette. Her er bryggers med egen indgang, to badeværelser, det ene med kar samt
stort, lyst og åbent alrum.
Boligen er løbende vedligeholdt og istandsat, senest er alle gulve udskiftet i 2022. De to
badeværelser er begge af ældre dato og her kan I altså vælge at tage rummene i brug som de
står, med det helt rigtige og velholdte retrolook, eller sætte eget præg på indretningen. Begge
badeværelser fremstår pæne og absolut brugbare.
Pladsen indenfor suppleres af isoleret værksted, af stor carport, af rummeligt skur og af
stemningsfulde og solrige udemiljøer.
Med udgang fra alrummet er der anlagt en stor, hyggelig fliseterrasse med højbede og rigelig
plads til sommerens selskaber. Haven i øvrigt byder på en stor plæne med plads til fysisk
udfoldelse og sol hele dagen.
- Super veldisponerede kvadratmeter
- Charmerende udemiljøer
- Lyse rum
- Perfekt familievilla
- Meget bolig for pengene
I Dalby har I det hele. Her er der skole, indkøbsmuligheder, daginstitutioner, fritidsaktiviteter, et
aktivt lokalsamfund, godt naboskab og masser af aktiviteter gennem hele året. Dalby er omgivet
af smuk natur ved søer, i skove og over de vidtstrakte, åbne vidder og får altså rige muligheder
for at nyde oplevelser i det fri.
Her udbydes nu en super velindrettet villa, hvor pladsen er særligt godt udnyttet og hvor der på
en og samme tid er indflytningsklar og muligheder for at sætte eget præg på udtrykket på jeres
nye hjem.
Pladsen fordeler sig over hele fire værelser, hvoraf det ene nemt kan deles op i to, hvis i har
behov for dette. Her er bryggers med egen indgang, to badeværelser, det ene med kar samt
stort, lyst og åbent alrum.
Boligen er løbende vedligeholdt og istandsat, senest er alle gulve udskiftet i 2022. De to
badeværelser er begge af ældre dato og her kan I altså vælge at tage rummene i brug som de
står, med det helt rigtige og velholdte retrolook, eller sætte eget præg på indretningen. Begge
badeværelser fremstår pæne og absolut brugbare.
Pladsen indenfor suppleres af isoleret værksted, af stor carport, af rummeligt skur og af
stemningsfulde og solrige udemiljøer.
Med udgang fra alrummet er der anlagt en stor, hyggelig fliseterrasse med højbede og rigelig
plads til sommerens selskaber. Haven i øvrigt byder på en stor plæne med plads til fysisk
udfoldelse og sol hele dagen.
Matthias Wolff
Ejendomsmægler MDE
Fandt du ikke hvad du søgte
Så opret dig her på siden med dine ønsker til en ny bolig.
Så optager vi dig i vores køberkartotek, så du er blandt de første der modtager materiale på nye boliger til salg, der matcher
dine ønsker. Du får en gratis online søge annoncering efter din drømme bolig og hører fra os når der er en ny bolig til dig.




